Skills:

Conceptual Art

Adobe Photoshop

Adobe Illustrator

AutoCad Architecture

Elevation Wall Design

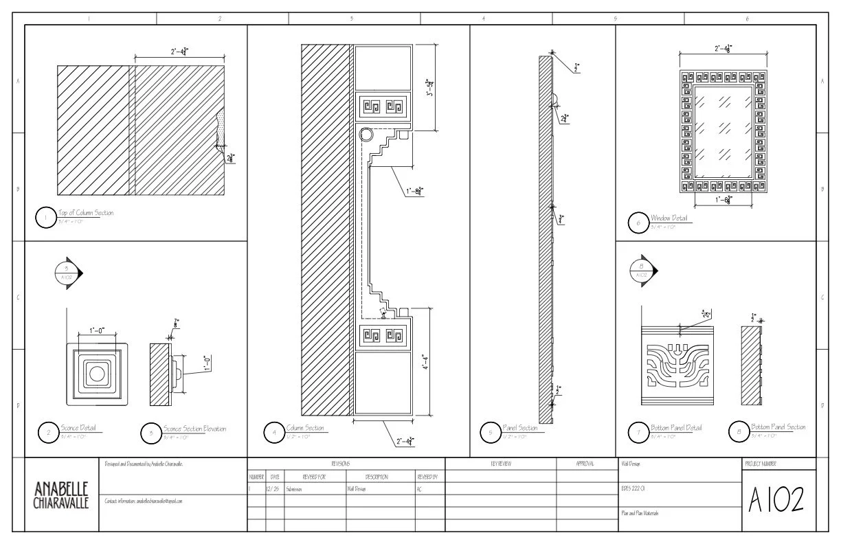
The Strata Wall Design concept consists of designing a custom wall that will be built for a new heritage hotel in Centro Histórico, Mexico City. They have asked us to create a signature architectural element that embodies the layered cultural, architectural, and material history of Mexico City.

This wall design celebrates the layered identity of modern Mexico City by blending geometric language inspired from ancient Teotihuacan art and architectural forms of the Metropolitan Cathedral.

Created from stucco and wood tiling accents the wall creaties a cohesive design. The design highlights the ongoing influence of ancient and colonial traditions. Together, these elements form a cohesive visual narrative that reflects how the city’s past continues to shape its vibrant present.

Previous
Previous

TeIN Brand

Next
Next

Facehugger: Prop Deconstruction